Elegantna vila modernog dizajna, osmišljena za udoban i luksuzan život.
Elegantna vila modernog dizajna, osmišljena za udoban i luksuzan život.
Prostrana i suvremena vila koja spaja vrhunski dizajn i funkcionalnost. Prostor je dizajniran tako da zadovolji potrebe moderne obitelji, uz pažljivo birane detalje koji unose osjećaj topline i elegancije.
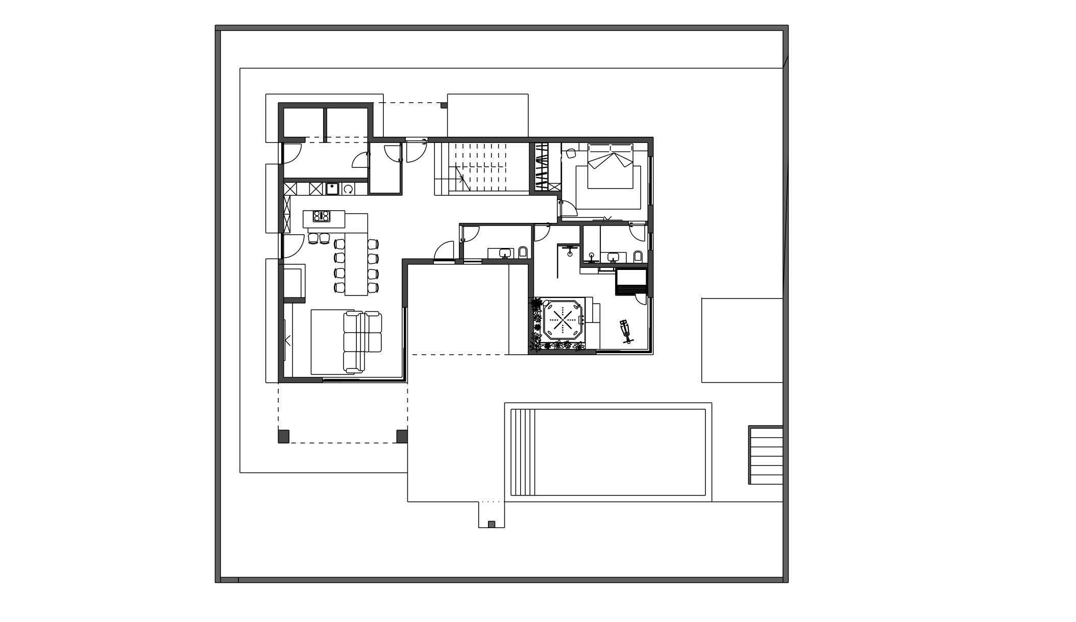
Prizemlje
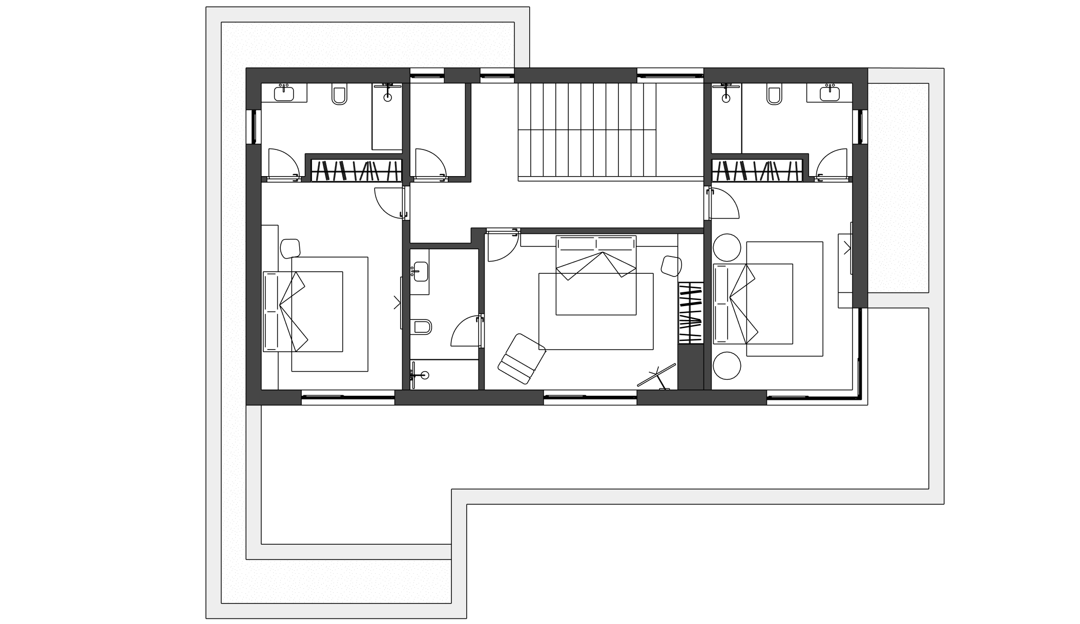
Prvi kat
Naglasak je bio na stvaranju otvorenog prostora koji povezuje interijer i eksterijer. Glavni cilj bio je postići savršen balans između modernog dizajna i udobnosti potrebne za svakodnevni obiteljski život.
Kako bismo pružili najbolje iskustvo, koristimo tehnologije poput kolačića za pohranu i/ili pristup informacijama na uređaju. Pristajanjem na ove tehnologije omogućujete nam obradu podataka poput ponašanja tijekom pregledavanja ili jedinstvenih ID-ova na ovoj stranici. Nepristajanje ili povlačenje pristanka može negativno utjecati na određene funkcionalnosti i značajke.