Moderno dizajniran stambeni prostor.
Moderno dizajniran stambeni prostor.
Kuća je osmišljena s idejom da kombinira udobnost i praktičnost u svakodnevnom korištenju. Svijetle nijanse, prostrani raspored i kvalitetni materijali osigurali su prostor koji odiše skladom. Moderni namještaj i pažljivo odabrane teksture čine interijer sofisticiranim, ali nepretencioznim.
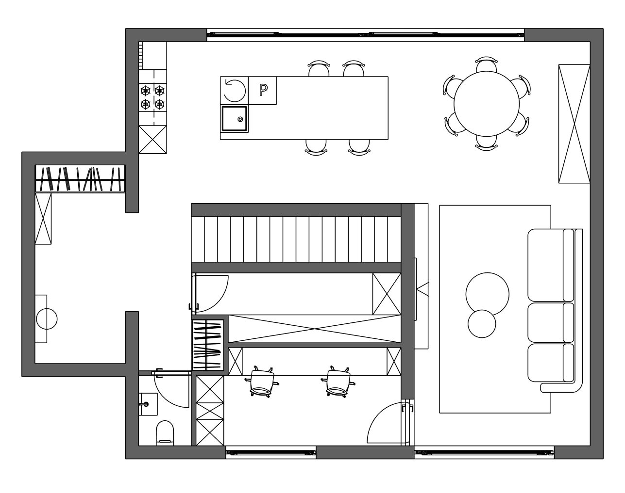
Prizemlje
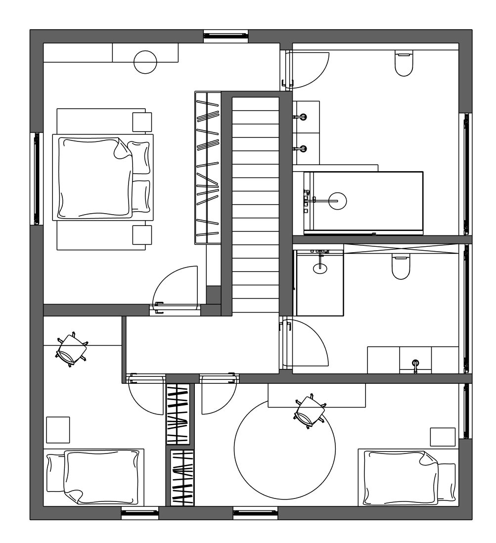
Prvi kat
Kreirati svijetli, prostrani i funkcionalan interijer prilagođen potrebama korisnika.
Kako bismo pružili najbolje iskustvo, koristimo tehnologije poput kolačića za pohranu i/ili pristup informacijama na uređaju. Pristajanjem na ove tehnologije omogućujete nam obradu podataka poput ponašanja tijekom pregledavanja ili jedinstvenih ID-ova na ovoj stranici. Nepristajanje ili povlačenje pristanka može negativno utjecati na određene funkcionalnosti i značajke.